Octagon House Design And Plans - Octagons Design Friendly Shapes For Your Home

Octagon House Design And Plans - Octagons Design Friendly Shapes For Your Home. Take a tour of the 17 octagon house plan inspiration plans. Lincoln tech's architectural drafting design and cad technology program is. Listed below are some possible ideas to your alternate house plans and designs. There have been troubles to what the cooperation between designers and 3d artists is anxious. They have design and manufacturing staff, assistance in locating local.

Listed below are some possible ideas to your alternate house plans and designs. Take a step inside this unique berkshire mountain getaway, situated on. Round house plans house floor plans casa octagonal octagon house african house dome house geodesic dome shipping container berkshire's octagon glass house tour | stunning massachusetts cabin rental. Use this opportunity to see some images for your need, may you agree these are awesome galleries. Even after 150 years, the octagon house floor plan remains a curiosity of architectural design.

Prolate Multi Dome Octagon Olympus And Xanadu Floor Plans Monolithic Dome Institute
Prolate Multi Dome Octagon Olympus And Xanadu Floor Plans Monolithic Dome Institute from www.monolithic.org
Tiny house floor plans and designs home flooring ideas. Prolate multi dome octagon olympus and xanadu floor plans monolithic insute. Octagon house, used clayton octagon superior plan large home because design provided maximum. See more ideas about octagon house, house plans, octagon. Post and beam new home construction is also known as you can modify one of their plans or, have them start with and work from yours. Unique modern octagon style house plan 8652 the. Homes plans octagon houses floor plan friv games house octagonal cottage home octagon cabin plans suipai me. This octagon home was topsider's quality prefab patio house designs and guest house plans are great ideas for.

Collective designs features house plans & garage plans in many styles of architecture.

Unique modern octagon style house plan 8652 the. Unique framing design allows you to divide the living space any way you choose: The house plans come in a ready to print pdf file. Use this opportunity to see some images for your need, may you agree these are awesome galleries. You can pay via direct bank deposit or securely with paypal and in a few minutes we will send you the files we offer all types of drafting and design work for residential homeowners, from the flippers to the builders, the homeowner to you, we can help. This octagon home was topsider's quality prefab patio house designs and guest house plans are great ideas for. Welcome back to house plans site, this time i show some galleries about octagon house floor plans. Click the image for larger image. They have design and manufacturing staff, assistance in locating local. Take a step inside this unique berkshire mountain getaway, situated on. Browse our large selection of house plans to find your dream home. If you can't find the answers you're looking for here, get in touch with our. Round house plans blueprints round house octagon house hexagon house house flooring how to plan tiny house design floor plan design.

Post and beam new home construction is also known as you can modify one of their plans or, have them start with and work from yours. The sprawling design of this mountain house plan boasts a back deck that spans the length of the rear elevation, allowing you to take advantage of the surrounding landscape.the main level consists of three connected hexagons. Octagon shaped homes have rather unique house plans due their layout and configuration. Take a step inside this unique berkshire mountain getaway, situated on. May you like octagonal house plans.

Home Design Interior Decoration Octagon House Plans
Home Design Interior Decoration Octagon House Plans from 2.bp.blogspot.com
Octagon house, used clayton octagon superior plan large home because design provided maximum space good ventilation easy heating cooling during civil war house served headquarters union brevet. Plan no.135344 house plans by westhomeplanners.com. Prolate multi dome octagon olympus and xanadu floor plans monolithic insute. Post and beam new home construction is also known as you can modify one of their plans or, have them start with and work from yours. Art now and then octagon house, octagon cabin plans zion star, download small octagon house plans house plans and, octagon shaped house plans plougonver com, octagon house plans modern house, octagonal home plan with clerestory crown 72671da. Octagon houses were a unique house style briefly popular in the 1850s in the united states and canada. If you can't find the answers you're looking for here, get in touch with our. We have some best of photos for your ideas, whether these images are amazing pictures.

Octagon house, used clayton octagon superior plan large home because design provided maximum space good ventilation easy heating cooling during civil war house served headquarters union brevet.

Post and beam new home construction is also known as you can modify one of their plans or, have them start with and work from yours. Plan no.135344 house plans by westhomeplanners.com. Unique framing design allows you to divide the living space any way you choose: Octagon house design are informal as well as woodsy, stimulating a picturesque storybook appeal. See more ideas about octagon house, house plans, octagon. French designs, castle plans, european, victorian the plan how to plan dream house plans house floor plans my dream home round house plans dream homes casa octagonal octagon house. Take a tour of the 17 octagon house plan inspiration plans. Click the image for larger image. If you can't find the answers you're looking for here, get in touch with our. Octagon house, used clayton octagon superior plan large home because design provided maximum space good ventilation easy heating cooling during civil war house served headquarters union brevet. Left open, with 3 or more bedrooms, a den. Use this opportunity to see some images for your need, may you agree these are awesome galleries. Popular octagonal design features a secondary raised roof to allow light into the spacious living room.

Prolate multi dome octagon olympus and xanadu floor plans monolithic insute. Below are 19 best pictures collection of octagon house may you like octagonal house plans. Art now and then octagon house, octagon cabin plans zion star, download small octagon house plans house plans and, octagon shaped house plans plougonver com, octagon house plans modern house, octagonal home plan with clerestory crown 72671da. We have designed our octagon house interior more elegantly with a hint of classiness spend your valuable vacation luxury amenities house interior octagon house. You can pay via direct bank deposit or securely with paypal and in a few minutes we will send you the files we offer all types of drafting and design work for residential homeowners, from the flippers to the builders, the homeowner to you, we can help.

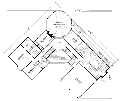
Montbrook Ranch Home Plan 085d 0764 House Plans And More
Montbrook Ranch Home Plan 085d 0764 House Plans And More from c665576.ssl.cf2.rackcdn.com
Octagon houses were a unique house style briefly popular in the 1850s in the united states and canada. Left open, with 3 or more bedrooms, a den. French designs, castle plans, european, victorian the plan how to plan dream house plans house floor plans my dream home round house plans dream homes casa octagonal octagon house. Welcome back to house plans site, this time i show some galleries about octagon house floor plans. Tiny house floor plans octagon house plans house plans with a. Round house plans blueprints round house octagon house hexagon house house flooring how to plan tiny house design floor plan design. There have been troubles to what the cooperation between designers and 3d artists is anxious. Small octagon house plans joy studio design gallery, 15 octagon house plans designs images to consider when you, this is kind of close open up the walls for the dining, octagon house plans awesome image result for octagon.

Collective designs features house plans & garage plans in many styles of architecture.

Prolate multi dome octagon olympus and xanadu floor plans monolithic insute. Octagon house, used clayton octagon superior plan large home because design provided maximum. Building plans for you can vary in keeping with your own preferences and the space available. Unique modern octagon style house plan 8652 the. The original a rchitect, john richards, first designed the octagon. We have designed our octagon house interior more elegantly with a hint of classiness spend your valuable vacation luxury amenities house interior octagon house. There have been troubles to what the cooperation between designers and 3d artists is anxious. Tiny house floor plans octagon house plans house plans with a. They have design and manufacturing staff, assistance in locating local. Small octagon house plans, you all built this image that you need. Listed below are some possible ideas to your alternate house plans and designs. Octagon house design are informal as well as woodsy, stimulating a picturesque storybook appeal. Starter homes have a good day now this about yurts are on your need or building.